DIG DESIGN 店舗・ビル設計

ロミータ(リノベーション案)

竣工日:2015年

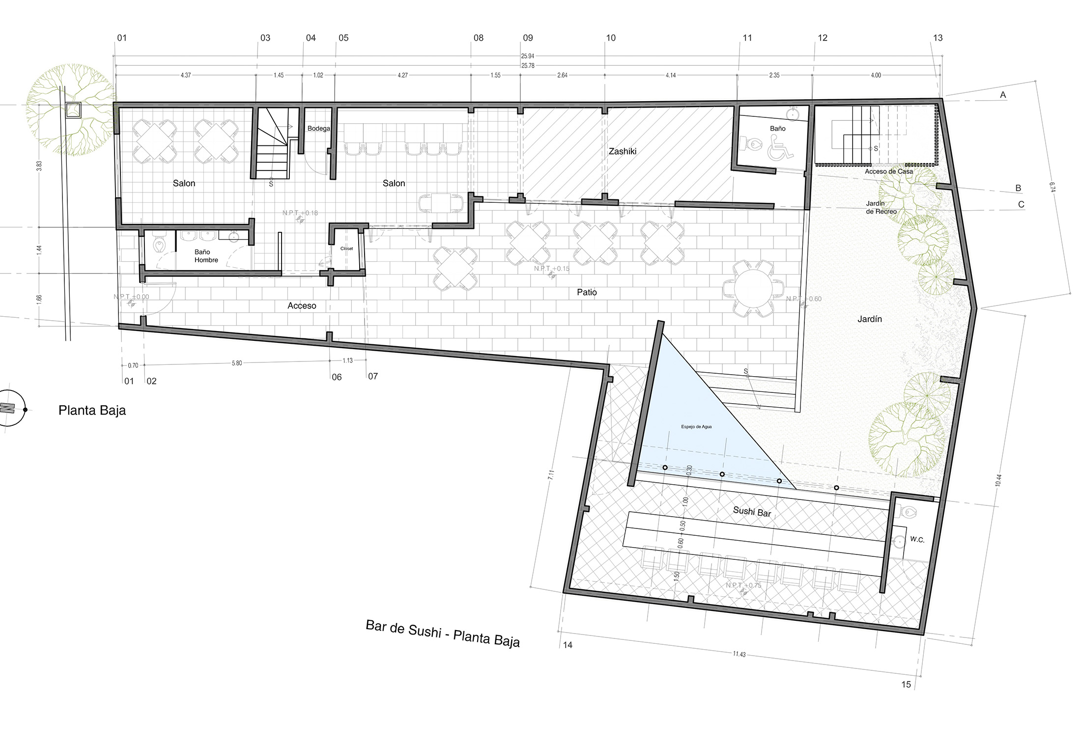
歴史ある街区に佇む、傷みの激しい廃墟をリノベーションする計画です。 知人が入手したこの建物を、再び人が集まる場所として再生できないかという相談から始まりました。

建物の中心には、特徴的な中庭が残されていました。この空間を軸に、バーや串揚げ店、寿司カウンターを組み込んだ複合飲食店を提案しています。

寿司カウンターのある離れには、水盤を設けて空間に静けさと緊張感をもたらしました。既存の壁や構造は部分的に保存・補強し、傷みのある箇所は丁寧に取り壊すことで、過去と現在をつなぐ設計としています。